О проекте
УНО.Соколиная гора
Квартиры
Площадь лотов
Потолки
Площадь проекта
УНО.Соколиная гора — новое поколение жилой недвижимости в историческом районе Москвы, в непосредственной близости от Измайловского парка. Динамичная и современная архитектура, формирует доминанту района и становится центром визуального притяжения, гармонично cочетая баланс между урбанистической энергией современной Москвы и спокойствием природы. Благодаря уникальной локации вся Москва будет для вас, как на ладони – удобные транспортные развязки, выезды на ключевые магистрали, метро и МЦК в шаговой доступности.
2 корпуса с переменной этажностью 17-21
Авторское благоустройство
Панорамное остекление
Подземный паркинг
Эко-район
Система умный дом
Это ваше новое
Генплан

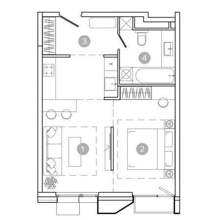
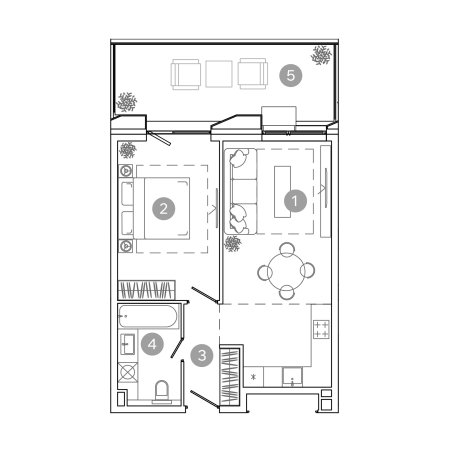
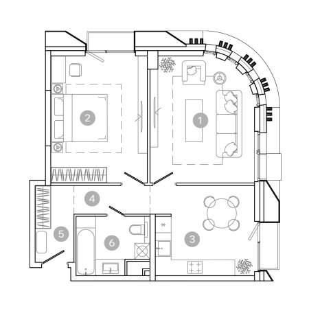
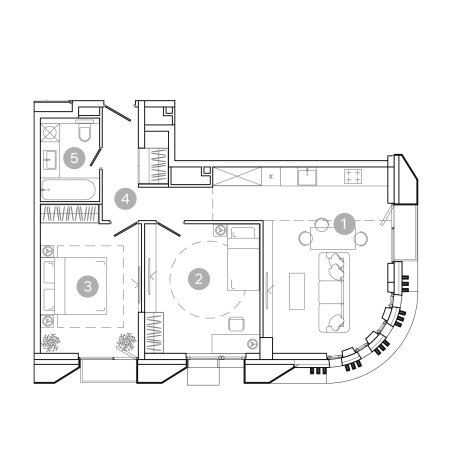
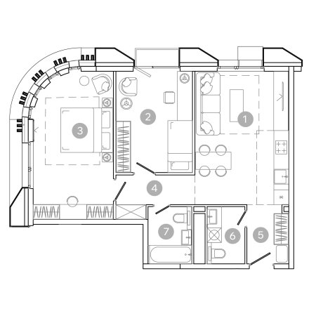
Планировки
нет доступных предложений
Ипотечный калькулятор
Ипотечный калькулятор

Панорама
Команда проекта
Девелопер проекта
Это новая, динамично развивающаяся компания, основанная в 2016 году, командой профессионалов с многолетним опытом работы в девелопменте.
Сегодня компания обладает диверсифицированной структурой и развивает четыре основные направления деятельности:

















































































