О проекте
Расположение
Планировки
Акции
Инвесторам
Коммерция
Контакты
Live
Назад
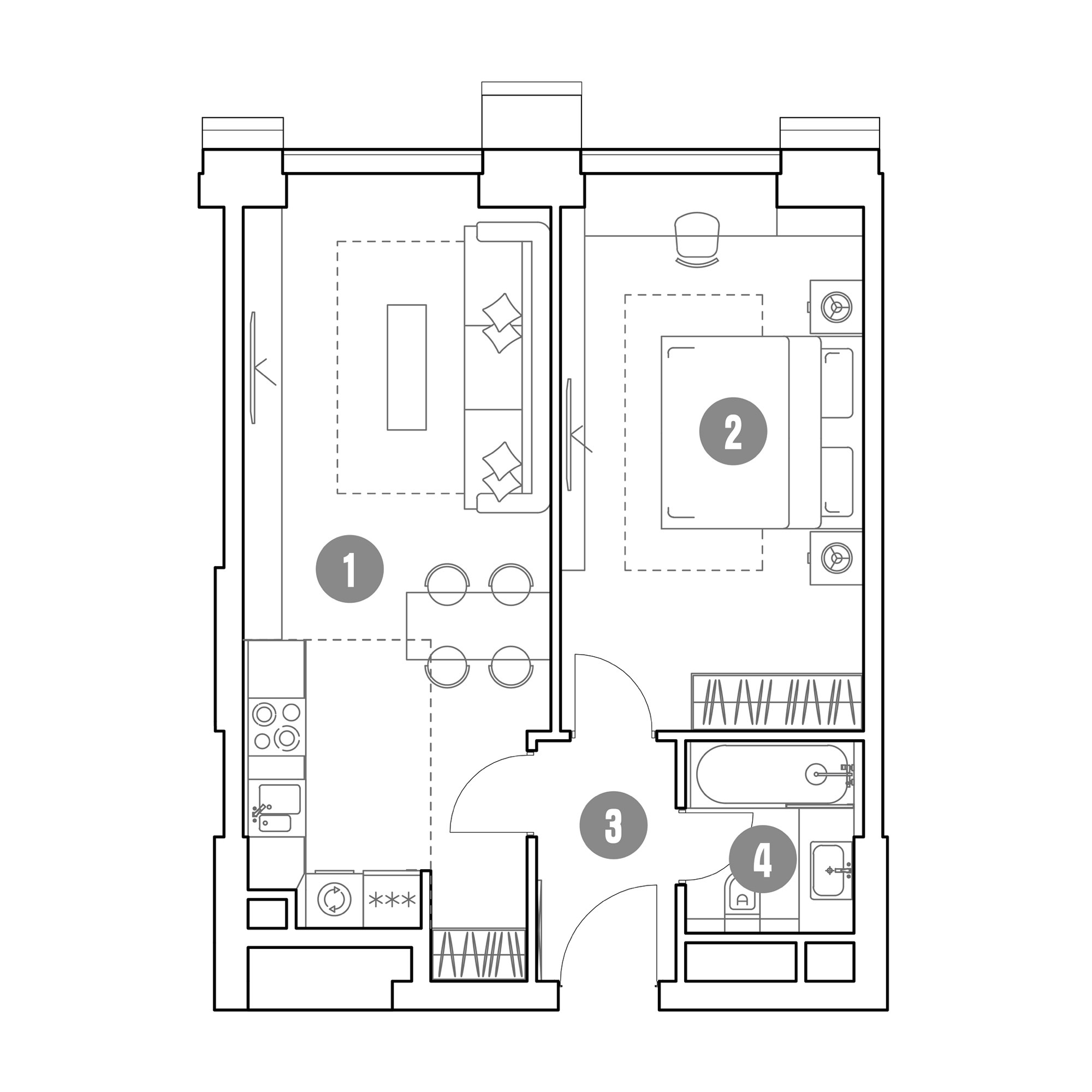
Этаж 25, № 247
Евро-2 50.2 м²
16 844 610 ₽
*
22 459 480 ₽
*При 100% оплате или классической ипотеке.
Корпус
1
Секция
1
1 - Кухня-гостиная
24.7 м²
2 - Комната
18 м²
3 - Холл
3.8 м²
4 - Санузел
3.7 м²
Подробнее
Забронировать
Заказать звонок
Планировка
На этаже
В корпусе
Вид из окна
скидка
25%
В этом лоте
Акция
«Приведи друга»!
И получи скидку 30% при покупке лота
Современная и модная архитектура
Автоматизация системой управления «Умный дом»
Функциональные лобби с дизайнерской отделкой
Город в городе
Насыщенная внутренняя инфраструктура
Преимущества
Откройте для себя уникальные преимущества ЖК МИРАПОЛИС, где сливаются комфорт, современность и передовые удобства
Ощутите новый уровень комфорта прямо сейчас
Забронировать планировку
Ипотека
Ставка 0,11% с первоначальным взносом 20%.
Рассрочка 0%
ПВ от 25%. Рассрочку предоставляет Застройщик ГК ОСНОВА.
Trade-in
Бронируем выбранный лот пока продается ваша недвижимость. Фиксируем стоимость на 30 дней.
Недвижимость в лизинг
Подробности в офисе продаж.
Варианты покупки
АО «АЛЬФА-БАНК»
Ставка от
0.11%
Первоначальный взнос от
20.1%
Срок
до 30 лет
ПАО МКБ
Ставка от
0.99%
Первоначальный взнос от
20%
Срок
до 30 лет
АО «БАНК ДОМ.РФ»
Ставка от
20.2%
Первоначальный взнос от
30.1%
Срок
до 30 лет
ПСБ
Ставка от
20.29%
Первоначальный взнос от
20.1%
Срок
до 30 лет
СБЕР
Ставка от
21.7%
Первоначальный взнос от
20.1%
Срок
до 30 лет
Ипотечный калькулятор
Ипотечный калькулятор
Остались вопросы? Мы готовы на них ответить!