МИРАПОЛИС -
ультрасовременный
бизнес-класс
на проспекте мира
Расположение

Генплан

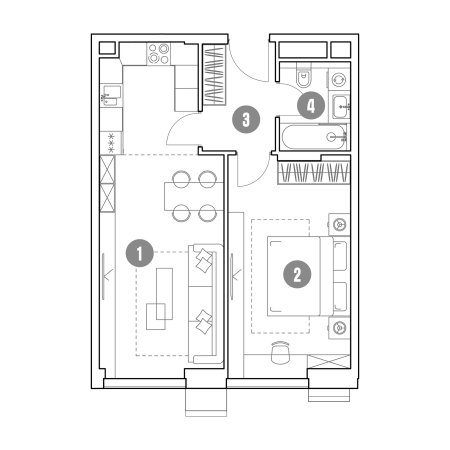
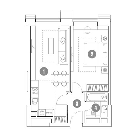
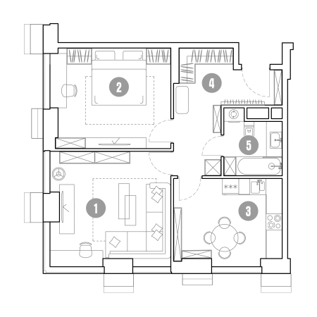
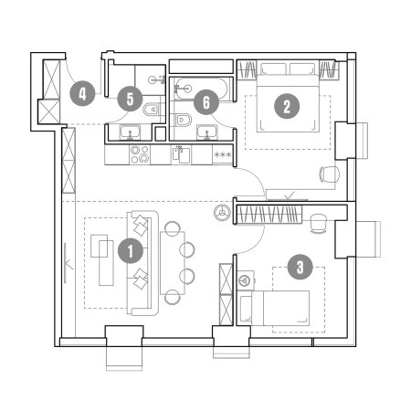
Планировки
Ипотечный калькулятор
Ипотечный калькулятор
Ход строительства
Команда проекта
Девелопер проекта
Автором архитектурной концепции квартала МИРАПОЛИС выступает известное архбюро KAMEN Architects, проекты которого неоднократно удостаивались самых престижных наград. Архбюро также разработало для проекта концепцию общественных пространств и благоустройства. Большой объем остекления вместе с металлическими элементами фасада в серебристо-белых оттенках создают ультрасовременный и стильный образ строящегося комплекса.
По словам руководителя архитектурного бюро KAMEN Architects Ивана Грекова, еще на этапе формирования конкурсного предложения авторы проекта сформулировали для себя несколько основных тезисов, от которых стремились не отступать: это максимальная функциональность, работа со средой проекта и его гармоничная интеграция в городское пространство, а также создание динамичной и прогрессивной архитектуры, формирующей образ светлого будущего. «Благодаря слаженной работе нашей команды и команды ГК «Основа» мы смогли достичь уникального сбалансированного результата: уникальности всего проекта в целом начиная от формообразования, расположения корпусов башен, сложной организации функциональной структуры и заканчивая интересным ярким образом внутри фасадов. В целом новый проект можно рассматривать как вертикальный город – по мере роста в высоту мы уходим в приватную жилую зону апартаментов с невероятными видами на парк и город».
Акционерное общество «Банк ДОМ.РФ» основано в 1995 году и действует на основании лицензии ЦБ РФ №2312.
Входит в ТОП-3 банков по объему проектного финансирования застройщиков с использованием эскроу в 2021 году*
*Источник ЕИСЖС
Частые вопросы





































































































